Data publikacji: 28-04-2023 | Data aktualizacji: 12-02-2025 | Autor: Adrian Szerszeń
Data publikacji: 28-04-2023 | Data aktualizacji: 12-02-2025 | Autor: Adrian Szerszeń
Aby obliczyć pole powierzchni w Autocadzie, skorzystaj z funkcji "Zmierzgeom" - narysuj pole powierzchni przez wskazywanie jego wierzchołków. Możesz też skorzystać z polilinii - zacznij od obrysowania polilinią kształtu, który chcesz zmierzyć. Kolejne kroki poznasz w dalszej części artykułu.

W trakcie niemalże każdego projektowania przychodzi moment, że
trzeba zliczyć jakąś powierzchnię. W programie AutoCad nie jest to
skomplikowane i generalnie można zrobić to kilka sposobów. Przeczytaj artykuł i dowiedz się, jak obliczyć pole powierzchni w AutoCad.
Drugi sposób obliczania pola powierzchni w AutoCad opiera się na wykorzystaniu właściwości polilinii, która zawiera w sobie informację o tym, jakie tworzy pole powierzchni.
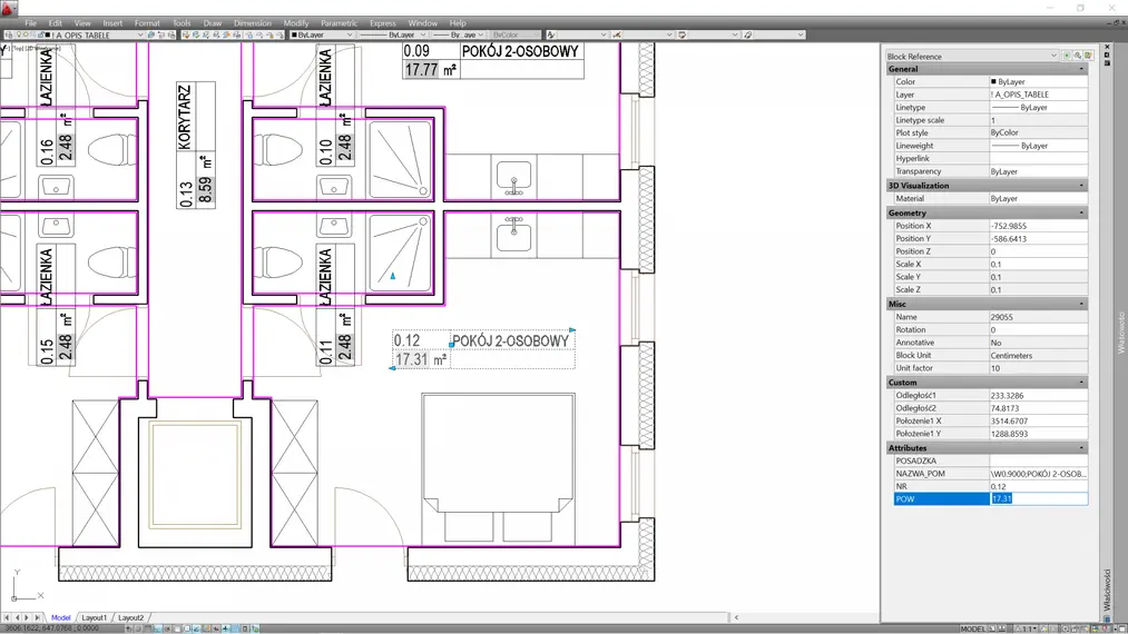
Jak zmierzyć pole powierzchni korzystając z polilinii
W tym celu warto stworzyć osobną warstwę i od razu zdefiniować ją jako niedrukowalną. Wykonywane na niej obwiednie nie istnieją w sposób fizyczny w projekcie, a są tylko elementami pomocniczymi przy rysowaniu.
Dlatego? Działanie tej metody można najprościej wyjaśnić na przykładzie zmierzenia powierzchni użytkowej jakiegoś pomieszczenia. W pierwszym kroku ustaw warstwę przeznaczoną dla powierzchni jako bieżącą i obrysuj interesujące Cię pomieszczenie za pomocą polilinii. Następnie ze względu na to, że mierzysz powierzchnię użytkową, uzyskany obrys pomniejsz o warstwy wykończeniowe ścian.
Aby to zrobić użyj palety właściwości. Możesz ją uruchomić skrótem klawiszowym „Ctrl+1”. W oknie palety zaznacz obrys pomieszczenia i sprawdź wartość dla pozycji „Obszar” (ang. „Area”) w zakładce „Geometria” (ang. „Geometry”)
Zazwyczaj tego rodzaju rysunki wykonywane są w centymetrach, gdzie powierzchnię pomieszczeń podaje się w metrach kwadratowych. Przyjmijmy, że tak jest również i w tym wypadku. Jeśli chcesz otrzymać wynik w metrach kwadratowych wartość widoczną w oknie właściwości należy przyjąć jako 10 000 razy mniejszą, ponieważ 1 cm2 = 0,0001m2.
Możesz skorzystać z wbudowanego kalkulatora AutoCad. Zaznacz interesującą Cię pozycję w palecie
właściwości. Obok jej wartości pojawi się ikonka uruchamiająca kalkulator. Jego obsługa jest prosta i nie powinna
sprawiać nikomu problemu. ![]()
Aby wyizolować warstwę z obwiedniami w AutoCadzie, skorzystać w funkcji „Warizo” (ang. „Layiso”), która wyłącza z widoku wszystkie warstwy oprócz tych, na których leżą aktualnie zaznaczone obiekty. Zaznacz więc jakąkolwiek obwiednię i wpisz komendę.
Gdy wyizolujesz warstwę, skup się na wykonaniu kreskowania,
poprzez wpisanie komendy „Kreskuj” (ang. „Hatch”). Możesz wybrać dowolny wzór kreskowania. Z doświadczenie nie polecam jednak „Solid”, ponieważ trudno jest go potem zaznaczać.
Jeśli chcesz dowiedzieć się, jak wykonać metkę pomieszczenia zbudowaną z atrybutów i jak tworzyć na jej podstawie zestawienia, koniecznie daj znać w komentarzu.
Mam
nadzieję, że materiał był dla Ciebie pomocny! Zachęcam do zapoznania się z naszą ofertą
kursów online z programu Autocad.
Pozdrawiam!
Liczba dostępnych kursów: 36
Łączny czas trwania kursów: 191 godzin
Liczba dostępnych kursów: 28
Łączny czas trwania kursów: 322 godzin
Liczba dostępnych kursów: 27
Łączny czas trwania kursów: 143 godzin
Liczba dostępnych kursów: 19
Łączny czas trwania kursów: 91 godzin
Szukasz czegoś innego?