Chcesz pracować w GstarCAD szybciej, dokładniej i bardziej profesjonalnie? Jeśli znasz już podstawy programu, ale czujesz, że nie wykorzystujesz jego pełnych możliwości - ten kurs jest dla Ciebie. Dowiesz się, jak zarządzać złożonymi projektami, tworzyć inteligentne bloki, współpracować w środowisku wielobranżowym i przygotowywać profesjonalne zestawienia oraz wydruki.
Zacznij tworzyć profesjonalne projekty w GstarCAD
Kurs GstarCAD dla profesjonalistów został przygotowany z myślą o architektach, projektantach wnętrz, inżynierach oraz wszystkich osobach pracujących na co dzień z dokumentacją techniczną.
Jeśli masz za sobą podstawy GstarCAD i chcesz wejść na wyższy poziom zaawansowania - nauczysz się tu technik, które znacząco przyspieszą Twoją pracę i poprawią jakość Twoich projektów.

Poznaj zaawansowane zarządzanie warstwami
Pierwszy moduł kursu poświęcony jest zarządzaniu warstwami. Dowiesz się, jak używać Property Filter i Group Filter, tworzyć Layer States oraz efektywnie filtrować i kontrolować widoczność obiektów.
Dzięki temu łatwo utrzymasz porządek w rozbudowanych projektach i szybko odnajdziesz potrzebne elementy.
Dynamiczne i inteligentne bloki z atrybutami
W kolejnej części nauczysz się, jak tworzyć bloki z atrybutami, czyli obiekty z informacjami o elementach wyposażenia, materiałach czy wymiarach.
Pokażemy też, jak budować bloki dynamiczne - reagujące na zmiany w projekcie. Zrozumiesz, jak dodawać parametry i akcje, a następnie wykorzystasz to w praktyce, tworząc parametryczne biurko z opcjami widoczności.

Automatyczne zestawienia i dane projektowe
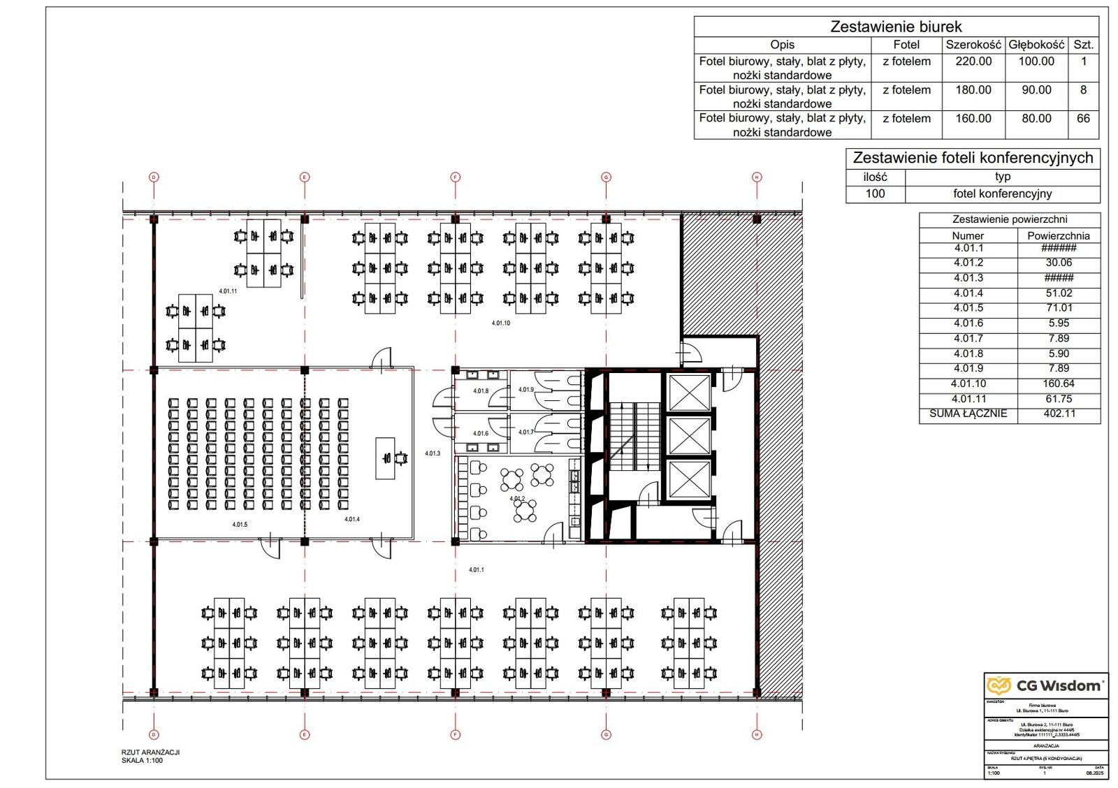
Dowiedz się, jak przygotować automatyczne zestawienia powierzchni i elementów w projekcie - zarówno ręcznie, jak i z wykorzystaniem wbudowanych narzędzi GstarCAD. Poznaj funkcje Data Extraction oraz narzędzie Count, które pozwolą Ci błyskawicznie generować raporty z projektu i uniknąć błędów w obliczeniach.
Współpraca w projektach wielobranżowych (Xref, scalanie, porównywanie plików)
W tej części kursu nauczysz się korzystać z odwołań zewnętrznych (XREF) i poznasz zasady pracy zespołowej w GstarCAD. Zobaczysz, jak porównywać zmiany w plikach, scalać rysunki oraz organizować nazewnictwo i strukturę plików w projektach, w których uczestniczy wiele branż.
Przygotowanie do wydruku i czyszczenie plików
Profesjonalny projekt kończy się dopiero wtedy, gdy jest gotowy do wydruku. W kursie poznasz funkcje Plot, E-transmit oraz kolejkę wydruków, które pozwolą Ci w pełni kontrolować proces przygotowania dokumentacji.
Dowiesz się też, jak czyścić pliki z niepotrzebnych danych za pomocą narzędzi Purge, Audit i metod ręcznych, by zachować porządek i lekkość projektu.

Projekt praktyczny: plan biura krok po kroku
W części praktycznej kursu wykonasz kompletny projekt planu biura. Zaczniemy od wczytania podkładu budowlanego, następnie przejdziemy do modelowania układu biura, tworzenia zestawień powierzchni i umeblowania, a na końcu przygotujemy rzutnie i plik do wydania. Dzięki temu zobaczysz, jak w praktyce wykorzystać wszystkie poznane narzędzia i techniki.
Dlaczego warto ukończyć to szkolenie z zaawansowanego GstarCAD?
Po ukończeniu kursu będziesz w stanie pracować szybciej, dokładniej i efektywniej, a Twoje projekty będą prezentować się na najwyższym poziomie. Opanowanie zaawansowanych technik GstarCAD to inwestycja, która zwróci się w postaci oszczędności czasu i wyższej jakości dokumentacji projektowej. Nauczysz się wykorzystywać narzędzia, które automatyzują pracę i eliminują powtarzalne czynności.
Kurs jest prowadzony w praktyczny sposób. Każda technika jest od razu zastosowana w realnych sytuacjach projektowych. Dzięki kompleksowemu projektowi Space Plan biura będziesz mógł przećwiczyć wszystkie omawiane zagadnienia i zobaczyć, jak działają w praktyce.

Czy GstarCAD to dobra alternatywa dla AutoCAD?
GstarCAD jest całkowicie zgodny z formatami .dwg i .dxf, co sprawia, że staje się coraz bardziej popularną alternatywą dla AutoCAD. Program oferuje podobną funkcjonalność w niższej cenie, zachowując pełną kompatybilność z projektami AutoCAD. Jeśli wiążesz swoją przyszłość z branżą projektową, opanowanie zaawansowanych technik w GstarCAD będzie cenną umiejętnością na rynku pracy.
Podsumowanie
Po ukończeniu kursu GstarCAD dla profesjonalistów - Zaawansowane techniki projektowania będziesz potrafił tworzyć w pełni zorganizowane, czytelne i profesjonalne projekty. Zrozumiesz logikę działania narzędzi, poznasz sposoby automatyzacji pracy i przygotowania dokumentacji, która spełnia najwyższe standardy branżowe.