Archicad - Jak nadać tekstury na rzucie? Tworzenie wypełnień obrazkowych - Artykuł, Poradnik.

Data publikacji:  |  Data aktualizacji: 10-11-2023  | Autor: Witold Sałaciński

Aby skorzystać z wypełnienia obrazami przejdź do zakładki Opcje > Atrybuty elementów > Rodzaje wykończenia. Wczytaj dowolny obraz z Twojego komputera i załaduj go do bazy wypełnień. W zakładce Opcje > Atrybuty elementów > Wypełnienia wybierz wypełnienie obrazami, kliknij "Utwórz" i nadaj nazwę. W folderze "Biblioteka wewnętrzna" znajdzie się wgrana przez Ciebie tekstura. Szczegółową instrukcję krok po kroku przeczytasz w dalszej części artykułu.

Archicad - Jak nadać tekstury na rzucie? Tworzenie wypełnień obrazkowych - Artykuł, Poradnik.

Spis treści
    Jeśli zastanawiasz się jak utworzyć dowolne wypełnienie obrazkowe w programie Archicad, to ten poradnik jest dla Ciebie! Pokażę Ci krok po kroku jak można to wykonać.

    Wypełnienia obrazkami - co to?

    Wypełnienie obrazkami (lub wypełnienie obrazkowe) pozwala na utworzenie wypełnienia z dowolnym materiałem w postaci obrazka na rzucie.  Dzięki temu można pokazać rzut dowolnej kondygnacji budynku uwzględniając przy tym prawdziwy materiał pokrywający podłogę. Jest to przydatne przy tworzeniu planów budynków do katalogów lub pokazywania aranżacji wnętrz zaprojektowanych obiektów. Wypełnienia obrazkami można znaleźć na liście udostępnionych przez twórców oprogramowania gotowych wypełnień.

    Archicad - tworzenie wypełnień obrazkowych - 01

    Przykładowo - wybierając parkiet, uzyskamy wypełnienie dowolnej powierzchni parkietem na rzucie, tak jak na przykładowym obrazku:

    Archicad - tworzenie wypełnień obrazkowych - 02

    Tworzenie własnego wypełnienia obrazkami

    W celu utworzenia własnego wypełnienia obrazkami (dowolnym materiałem, jaki potem wyświetlimy na rzucie) przechodzimy do zakładki Opcje, następnie Atrybuty elementówRodzaje wykończenia.
    Archicad - tworzenie wypełnień obrazkowych - 03

    Tworzymy nowy rodzaj wykończenia wyszukując dowolny obrazek pobrany z internetu z naszych folderów:

    Archicad - tworzenie wypełnień obrazkowych - 04

    Archicad - tworzenie wypełnień obrazkowych - 04

    Po załadowaniu obrazka z panelami podłogowymi klikamy "ok". Teraz mamy już gotowy materiał. Następnym krokiem będzie załadowanie go do bazy wypełnień.
    Przechodzimy do zakładki Opcje, następnie Atrybuty elementówWypełnienia.
    Następnie wybieramy z listy dowolne wypełnienie obrazkami i klikamy Utwórz.
    Tworzymy nową nazwę wypełnienia, np. 01 Panele podłogowe. Zaznaczamy w oknie nowego wypełnienia - wypełnienie obrazkami, tak jak na pokazanym przykładzie:

    Archicad - tworzenie wypełnień obrazkowych - 06

    Następnie klikamy Przeglądaj i wyszukujemy pobraną przez nas teksturę, jaką użyjemy do utworzenia wypełnienia. Powinna ona być w folderze Biblioteka wewnętrzna:

    Archicad - tworzenie wypełnień obrazkowych - 07

    W kategoriach w oknie Wypełnienia zaznaczamy kategorie wypełnienia: Wypełnienie wieloboków, Wypełnienie kryjące. Po kliknięciu ok przechodzimy w Palecie narzędzi do narzędzia Wypełnienia, a następnie wyszukujemy utworzone przez nas wypełnienie obrazkami, czyli np. jak na przykładzie "01 Panele podłogowe", a następnie tworzymy dowolne wypełnienie.

    Archicad - tworzenie wypełnień obrazkowych - 08

    Archicad - tworzenie wypełnień obrazkowych - 09

    Wypełnienia obrazkowe na rzucie kondygnacji

    Pokrycie dowolnej części naszej kondygnacji gotowym wypełnieniem obrazkowym możemy opracować obrysowując nim dane pomieszczenie na planie budynku. Możemy to zrobić także używając do tego gotowej strefy z pomieszczeniem. W tym celu zaznaczamy dowolną strefę na rzucie opracowanego budynku z pomieszczeniem. Następnie w oknie ustawień wybranej strefy w zakładce Rzut piętra klikamy Dodaj wypełnienie kryjące. Następnie wyszukujemy na liście utworzone wcześniej własne wypełnienie obrazkami, tak jak na przykładzie:

    Archicad - tworzenie wypełnień obrazkowych - 10

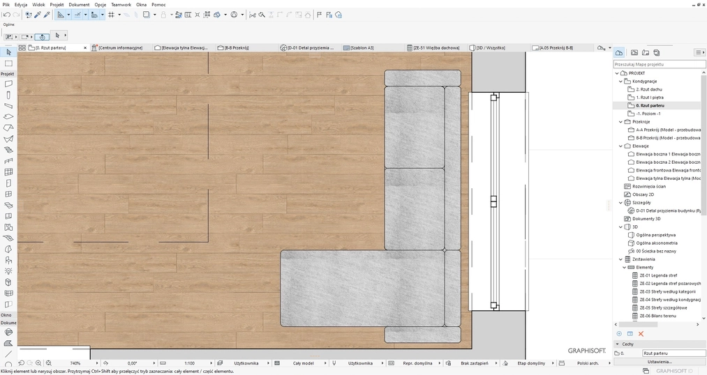
    W efekcie uzyskujemy strefę z wybranym pomieszczeniem pokrytą wypełnieniem obrazkowym, co przekłada się na pokazanie na rzucie utworzonego budynku aranżacji materiałowej podłogi:

    Archicad - tworzenie wypełnień obrazkowych - 11

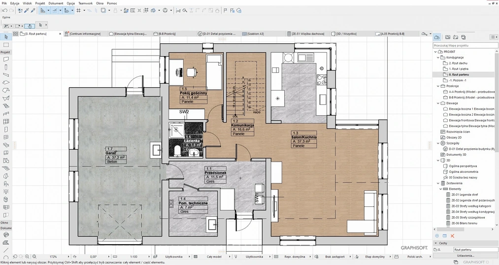
    Po zmianie reprezentacji wyświetlania rzutów wirtualnego budynku oraz pokryciu wszystkich stref wypełnieniami obrazkowymi możemy uzyskać poniższy efekt:

    Archicad - tworzenie wypełnień obrazkowych - 13

    Reprezentacja obiektów na rzucie z wypełnieniami obrazkowymi

    Przy użyciu wypełnień obrazkowych możemy pokryć także aranżację wnętrz w postaci mebli. Wystarczy, że zaznaczymy dowolny obiekt, a następnie w Ustawieniach wybranego obiektu i w rozwijanej liście Reprezentacja 2D, jako typ wypełnienia ustalimy dowolne wypełnienie obrazkowe w postaci materiału pobranego np. z internetu i załadowanego do biblioteki w naszym pliku, tak jak zostało to pokazane wcześniej.

    Archicad - tworzenie wypełnień obrazkowych - 13

    Dzięki temu możemy uzyskać ciekawy efekt reprezentacji aranżacji wnętrz:

    Archicad - tworzenie wypełnień obrazkowych - 14

    Oczywiście w tym przypadku cały obiekt zostanie pokryty jednym materiałem. Jeśli chcemy pokazać meble dokładniej pozostaje Nam dorysowywać lub obrysować pewne elementy za pomocą narzędzia Wypełnienia, przy użyciu wypełnień obrazkowych.

    Myślę, że po zapoznaniu się z poradnikiem, tworzenie i posługiwanie się wypełnieniami obrazkowymi w programie Archicad nie będzie już dla Ciebie problemem. Polecam także skorzystanie z obszernej bazy naszych kursów z programu Archicad.

    Dziękuję za zapoznanie się z poradnikiem :).

    Autor

    Witold Sałaciński Architekt, projektant budynków
    Z wykształcenia inżynier architekt. Absolwent kierunku architektura i urbanistyka Wyższej Szkoły Ekologii i Zarządzania w Warszawie. Projektant budynków o różnych funkcjach. Pasjonat fotografii lotniczej i sportu.

    Przeczytaj o programie Archicad na naszym blogu