Data publikacji: 08-07-2019 | Data aktualizacji: 30-03-2020 | Autorka: Iza Łuszczkiewicz
Data publikacji: 08-07-2019 | Data aktualizacji: 30-03-2020 | Autorka: Iza Łuszczkiewicz

Kiedy tworzymy w Archicadzie dość
duży projekt warto jest znać podstawowe opcje, które umożliwią nam zapanowanie
nad ilością elementów konstrukcyjnych czy też obiektów. W dzisiejszym poradniku
pokażemy Wam, w jaki sposób z całości projektu zaznaczyć tylko podobne do
siebie obiekty.
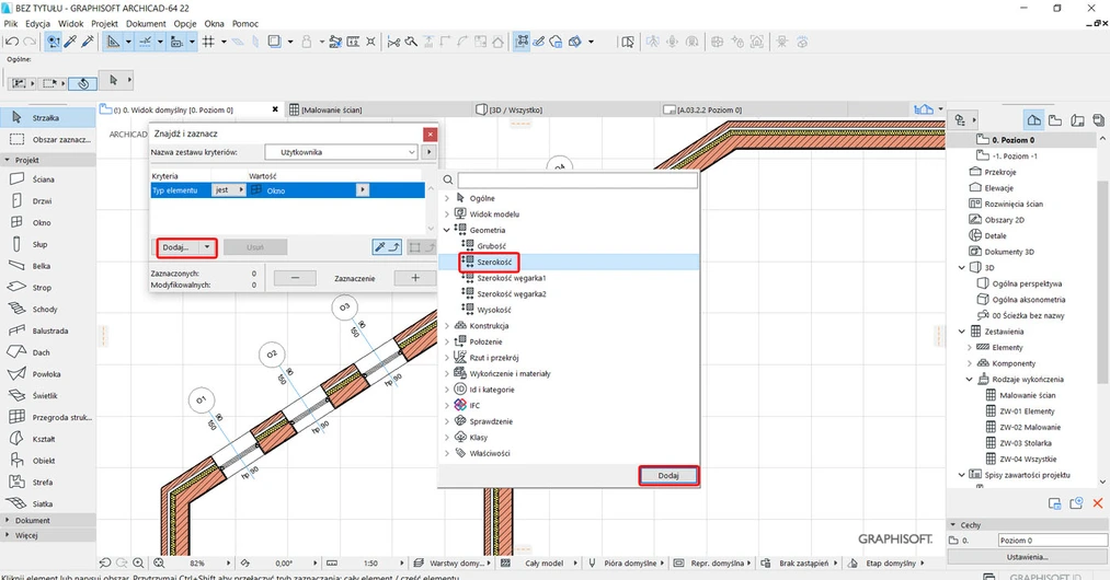
Bardzo przydatną w tym wypadku okazuje się opcja Znajdź i zaznacz. Znajdziemy ją w pasku u góry ekranu.
Wybierając ją wyświetli nam się okno, w który jesteśmy w stanie
określić kryteria za pomocą których Archicad wybierze nam obiekty do
zaznaczenia.
W przypadku tego narzędzia mamy do czynienia z zasadą „od ogółu do
szczegółu” czyli najpierw wymieramy główne narzędzie które chcemy zaznaczyć (w
naszym przypadku będą to okna) a następnie dodajemy kolejne kryteria, które
będą zawężać nasze poszukiwania ( u nas będzie to konkretna szerokość okna).
Jeżeli dodamy wszystkie kryteria, o które nam dokładnie chodziło
to wybieramy ikonę z plusem znajdującą się w prawym dolnym rogu. Wtedy obiekt
zostaje zaznaczony.
Jeżeli chcielibyście podszkolić się z zakresu projektowania w
Archicadzie zapraszamy do zapoznania się z naszymi kursami Archicada.
Pozdrawiam! :)
Liczba dostępnych kursów: 35
Łączny czas trwania kursów: 186 godzin
Liczba dostępnych kursów: 28
Łączny czas trwania kursów: 322 godzin
Liczba dostępnych kursów: 26
Łączny czas trwania kursów: 142 godzin
Liczba dostępnych kursów: 19
Łączny czas trwania kursów: 91 godzin
Szukasz czegoś innego?