Data publikacji: 04-01-2019 | Data aktualizacji: 30-03-2020 | Autorka: Iza Łuszczkiewicz
Data publikacji: 04-01-2019 | Data aktualizacji: 30-03-2020 | Autorka: Iza Łuszczkiewicz

Często
zdarza się sytuacja, kiedy zniknie nam jakiś pasek narzędzi lub paleta w
trakcie pracy. Włączenie jeszcze raz tego narzędzia a raczej szukanie miejsca,
w którym należy je włączyć przeważnie zajmuje nam więcej czasu niż sama praca.
W tym poradniku podpowiemy jak włączyć z powrotem paletę info, która
zdecydowanie jest jednym z najbardziej przydatnych akcesoriów w trakcie
projektowania.
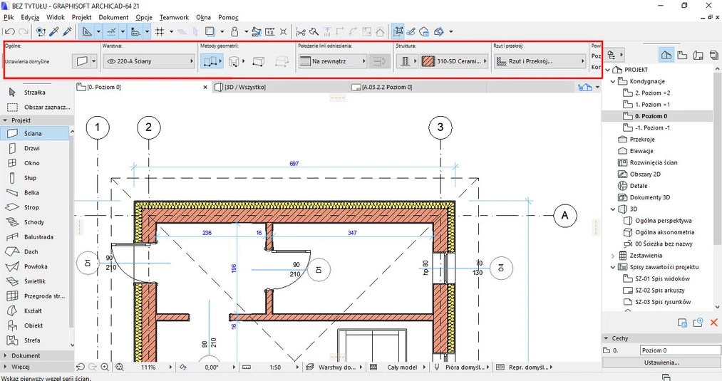
Jeżeli Waszą pierwszą myślą jest pytanie - Która to dokładnie jest paleta info? To już Wam ją pokazujemy poniżej. Faktycznie nie jest ona specjalnie opisana, więc macie prawo nie kojarzyć nazwy. Brak jej w trakcie projektowania trochę Was spowolni, bo nie będziecie mieć możliwości dostępu do wszystkich najbardziej oczywistych opcji jak wysokość, wymiary, wykończenie materiałowe czy nawet Okna Ustawień.
Aby z
powrotem włączyć paletę info należy kliknąć odpowiednio Okna -> Palety ->
Paleta info. Wróci wtedy na swoje miejsce i będziecie mogli korzystać z niej
cały czas.
Jeśli
interesuje Was tematyka projektowania i chcielibyście zgłębić temat zapraszamy
do zapoznania się z ofertą kursów online Archicada.
Pozdrawiamy! :)
Liczba dostępnych kursów: 36
Łączny czas trwania kursów: 191 godzin
Liczba dostępnych kursów: 28
Łączny czas trwania kursów: 322 godzin
Liczba dostępnych kursów: 27
Łączny czas trwania kursów: 143 godzin
Liczba dostępnych kursów: 19
Łączny czas trwania kursów: 91 godzin
Szukasz czegoś innego?